- Accueil
- Vente
- Deux sevres
- Niort
- APPARTEMENT T1 - A VENDRE INVESTISSEMENT LOCATIF EN LMNP
Référence : 915
Calculatrice
Partager
APPARTEMENT T1 - A VENDRE INVESTISSEMENT LOCATIF EN LMNP
Description de l'offre
INVESTISSEMENT LOCATIF EN LMNP- La résidence Venezia profite d’un emplacement stratégique (à 7 min à pied de l’arrêt de bus « Hôpital ») facilitant l’accès aux nombreux pôles universitaires. Venezia bénéficie de tout le confort nécessaire au quotidien avec de nombreux commerces de proximité (Carrefour Market, pharmacie, tabac, boulangerie, à 10 min à pied) A seulement 6 minutes en vélo du centre-ville de Niort, la résidence bénéficie d’un emplacement central permettant aux étudiants d’accéder à toutes les commodités rapidement : • Lignes de bus à proximité : Ligne 1 : arrêt « Hôpital » à 600 m reliant à la résidence à Niort Pôle Universitaire Ligne 7 : arrêt « Hôpital » à 600 m reliant à plusieurs points d’intérêts du centre-ville de Niort • Gare de Niort à 1 km de la résidence, desservie par les TGV (direction Paris en 2h) et TER (Direction La Rochelle et Poitiers) La Résidence est une copropriété de 221 logements collectifs (T1 et T2) répartis sur 4 bâtiments en R+2+ attiques et 100 places de parking semi-couvertes en RDC des 4 bâtiments. - Résidence clôturée et sécurisée, vastes espaces verts arborés, terrasse en potagers partagés en roof-top. La résidence propose des espaces communs en rez-de-chaussée du bâtiment B : · Salle commune + cuisine équipée · Espace coworking · Salle de fitness · Laverie · Espace vélos · Bureau d’accueil · Salle de cinéma · Logements meublés et optimisés grâce à de nombreux rangements LIVRAISON : 3ème Trimestre 2025
Descriptif du bien
- Code postal : 79000
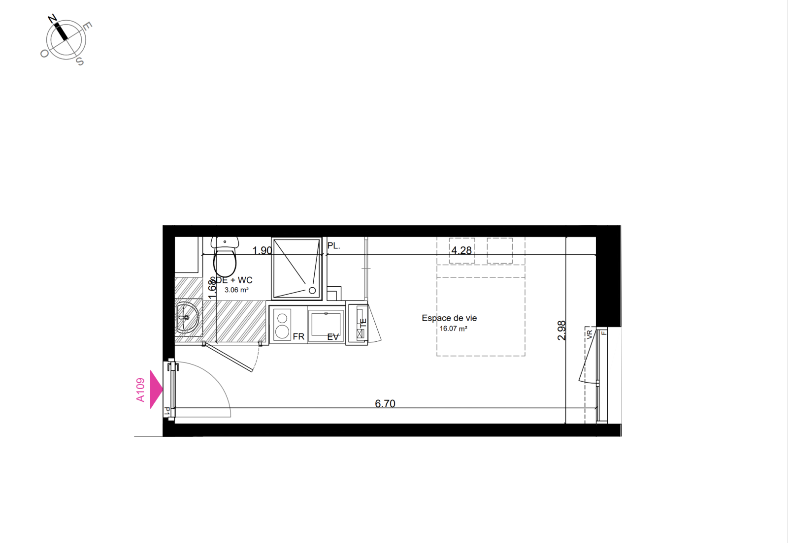
- Surface habitable (m²) : 19 m²
- Nombre de pièces : 1
- Etage : 1
- Ascenseur : OUI
- Nb de salle d'eau : 1
- Cuisine : KITCHENETTE
- Type de cuisine : EQUIPEE
- Mode de chauffage : Gaz
- Type de chauffage : Radiateur
- Format de chauffage : Collectif
- Exposition : SUD
- Année de construction : 2025
- Prix de vente : 108 540 €
- Les honoraires d'agence seront intégralement à la charge du vendeur
Nous Contacter
Afficher le téléphone 0546550496Les informations recueillies sur ce formulaire sont enregistrées dans un fichier informatisé par La Boite Immo agissant comme Sous-traitant du traitement pour la gestion de la clientèle/prospects de l'Agence / du Réseau qui reste Responsable du Traitement de vos Données personnelles.
La base légale du traitement repose sur l’intérêt légitime de l'Agence / du Réseau.
Elles sont conservées jusqu'à demande de suppression et sont destinées à l'Agence / au Réseau.
Conformément à la loi « informatique et libertés », vous pouvez exercer votre droit d'accès aux données vous concernant et les faire rectifier en contactant l'Agence / le Réseau.
Si vous estimez, après avoir contacté l'Agence / le Réseau, que vos droits « Informatique et Libertés » ne sont pas respectés, vous pouvez adresser une réclamation à la CNIL.
Nous vous informons de l’existence de la liste d'opposition au démarchage téléphonique « Bloctel », sur laquelle vous pouvez vous inscrire ici : https://www.bloctel.gouv.fr 
Dans le cadre de la protection des Données personnelles, nous vous invitons à ne pas inscrire de Données sensibles dans le champ de saisie libre
Ce site est protégé par reCAPTCHA, les Politiques de Confidentialité et les Conditions d'Utilisation de Google s'appliquent.

 
                                                 
                                                 
                                                 
                                                 
                                                 
                                                 
                                                 
                                                